Italiano
228.000 €

TRILOCALE CON TAVERNA E BOX SENZA SPESE CONDOMINIALI

3 locali in vendita • Limbiate - Via Trieste, 83A
- IMMOBILE VENDUTO IN ATTESA DI ROGITO NOTARILE -

Limbiate (MB).

In piccola palazzina del 2006 senza spese condominiali, proponiamo ampio trilocale di 102mq commerciali, posto al primo piano e composto da ingresso, soggiorno con terrazzino, cucina abitabile, disimpegno zona notte, camera matrimoniale con balcone, seconda camera con balcone, doppi servizi (entrambi finestrati).

Al piano seminterrato è presente un comodo locale taverna/cantina (open space) con bagno, ideale come spazio hobby, studio o area relax.

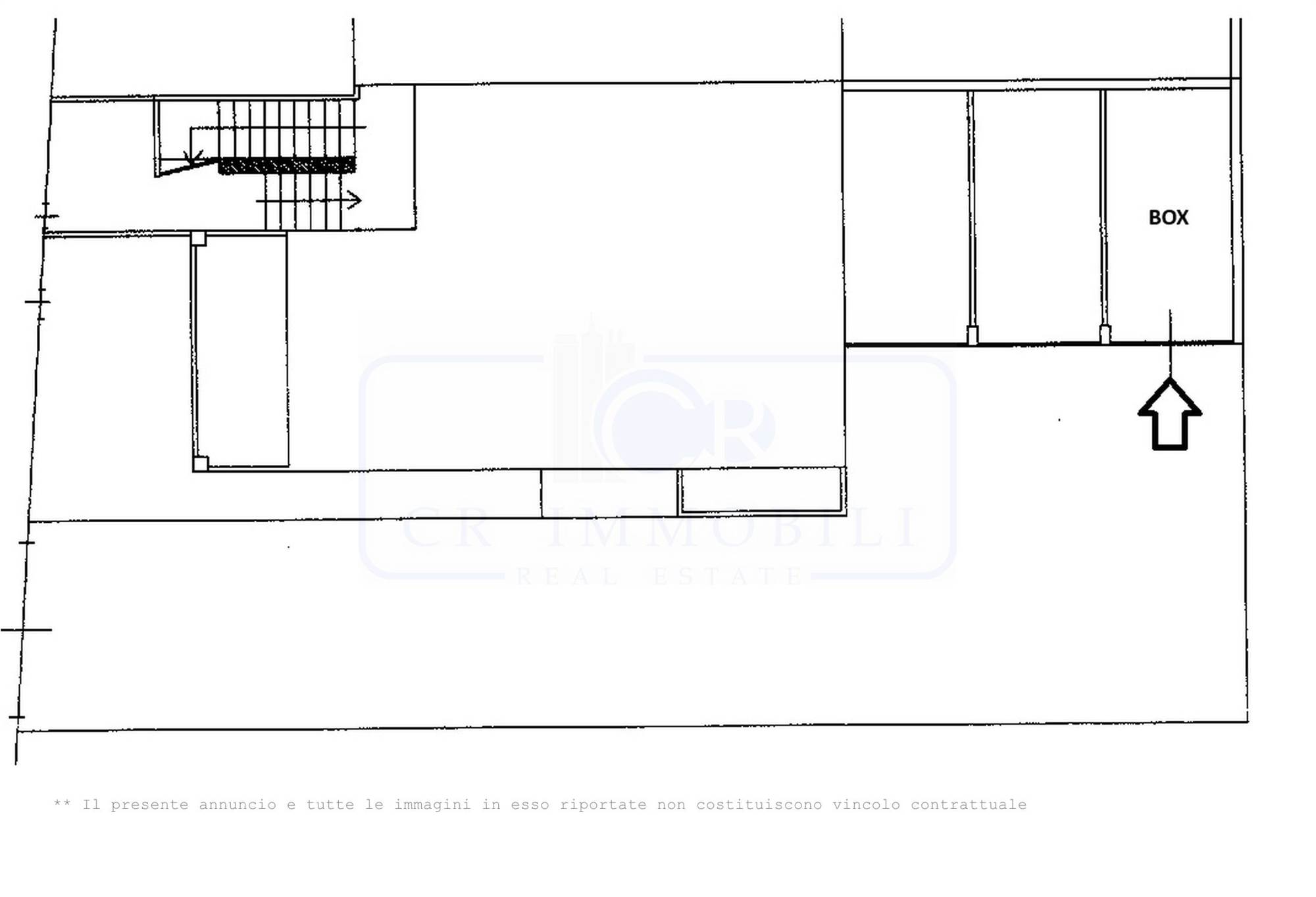
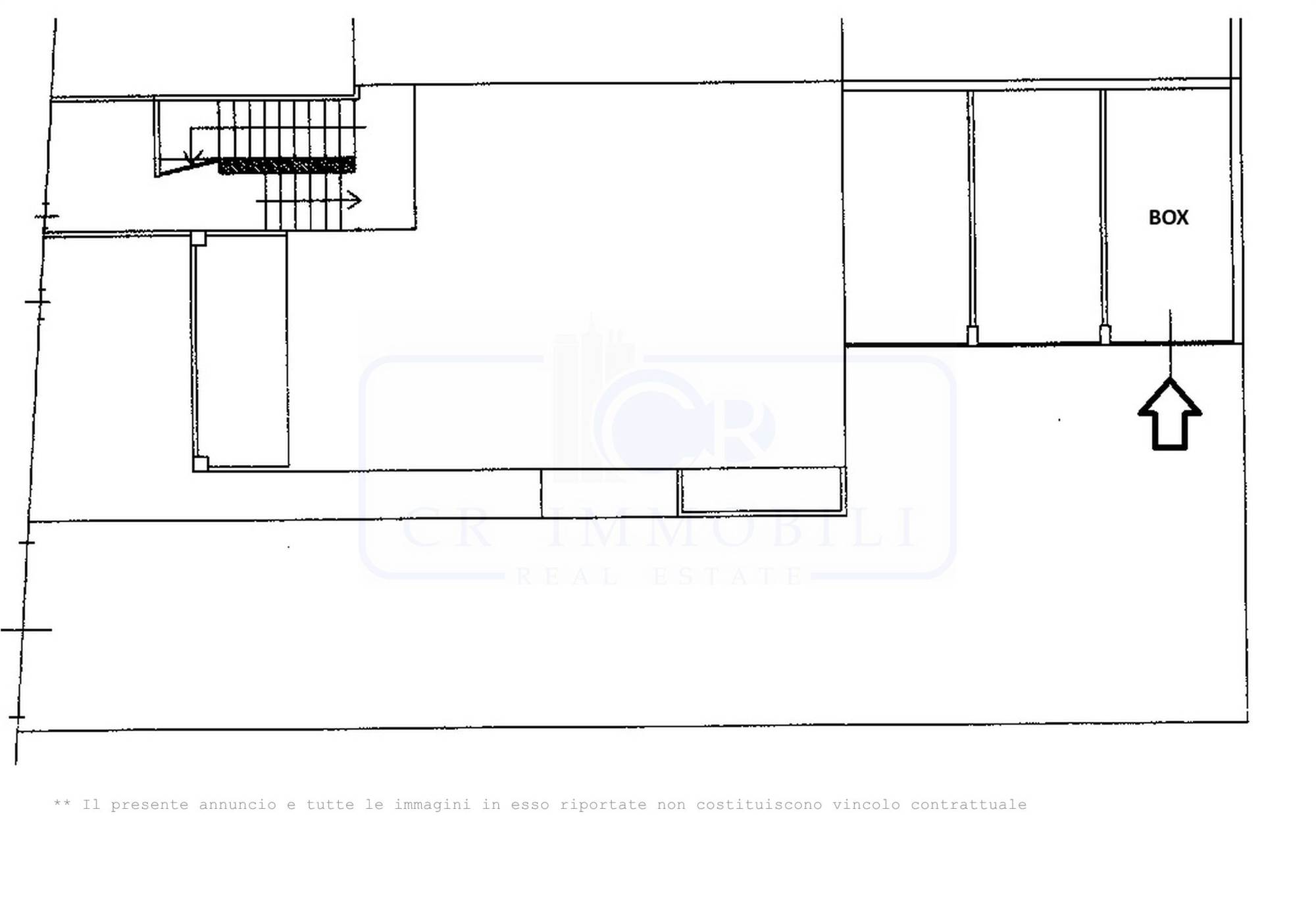
Possibilità di box al piano terra (acquistabile separatamente).

L’appartamento si presenta in ottime condizioni ed è dotato di:
- Pavimentazione in parquet, gres e ceramica
- Infissi in legno con doppi vetri
- Persiane in legno
- Porta blindata
- Inferriate
- Aria condizionata con split in tutti i locali
- Tendoni da sole motorizzati con sensore pioggia/vento
- Video citofono

Tripla esposizione e riscaldamento autonomo con caldaia a condensazione.

Libero al rogito.

Richiesta appartamento con taverna/cantina Euro 228.000.
Box opzionale ad Euro 16.000.

Classe Energetica D – IPE 182,76 kWh/mq.

Per informazioni e appuntamenti:
CR IMMOBILI RE Srl
Tel. 0238306701 - 3939483201 (Rif. 1209)
info@crimmobili.it - www.crimmobili.it
Caratteristiche principali
Codice
1209
Città
Limbiate
Categoria
3 locali
Prezzo
228.000 €
Locali
3
Camere
2
Bagni
2
Mq
102
Box
1
Mq Box
16
Balconi
2
Mq Balcone
14
Terrazzi
1
mq Terrazzo
10
Piano
1
Classe energetica
D
182,76 kWh/m²a
Stato Immobile
Ottimo
Grado
Medio
Posizione
Centro
Panorama
Vista Aperta
Orientamento
Nord Est Sud
Lati Liberi
3
Giardino
No
Arredi
Possibilità
Tipo Soggiorno
Soggiorno
Tipo Cucina
Abitabile
Riscaldamento
Autonomo
Tipo Riscaldam.
Caldaia a Condensazione
Tipo Impianto
Radiatori
Fonte Energetica
Metano
Acqua Calda
Autonoma
Raffrescamento
Split
Infissi
Legno Doppio Vetro
Serramenti
Buono
Persiana
Persiana Legno
Pavim. Giorno
Parquet
Pavim. Notte
Parquet
Pavim. Cucina
Ceramica
Pavim. Bagno
Gres Porcellanato
Accesso Disabili
No
Accesso interno disabili
Pieno accesso
Isolamento
Presente
Isolamento termico
Cappotto interno
Isolamento acustico
Isolamento pareti
Destinato a residenti
Si
Impianto d’irrigazione
No
VMC
No

Accessori: Aria Condizionata, Doppi Vetri, Porta Blindata, Rete Dati, Video Citofono

Mappa
Via Trieste 83A, Limbiate (MB)
Video
Richiedi informazioni
Invia
Condividi su
Cookie preference