Italiano
138.000 €

TRILOCALE 94MQ PIANO RIALZATO LIBERO SUBITO

3 locali in vendita • Bollate (Cassina Nuova) - Via Praga, 85
Bollate (MI) frazione Cassina Nuova.

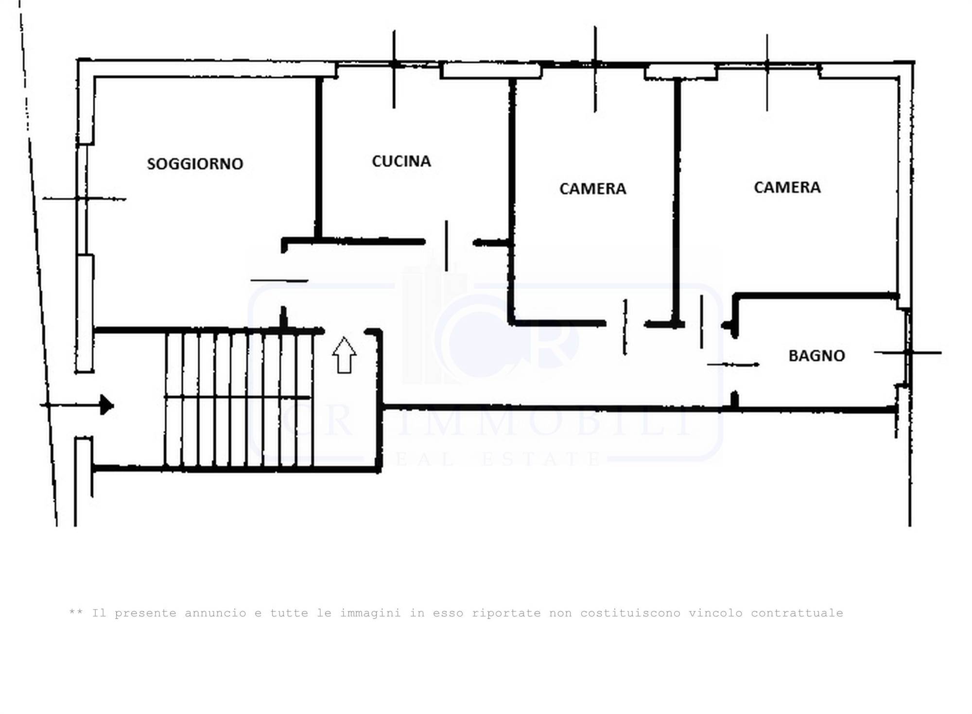
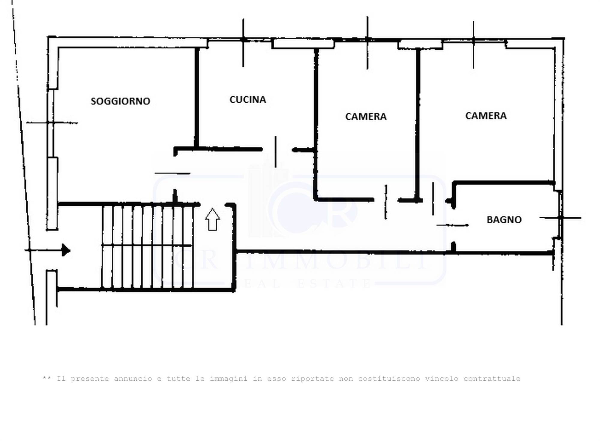
In palazzina di soli sei appartamenti senza spese condominiali, vendesi tre locali di 94mq posto al piano rialzato e composto da ingresso, soggiorno, cucina abitabile, disimpegno, camera matrimoniale, seconda camera e bagno.

Solaio di pertinenza al piano terzo.

L'appartamento si presenta in condizioni originali e necessità di interventi di personalizzazione. Gli infissi sono in alluminio con doppi vetri.

Libero subito.

Richiesta Euro 138.000.

Classe Energetica G - IPE: 348,13 kWh/mq.

Per informazioni e appuntamenti:
CR IMMOBILI RE Srl
Tel. 0238306701 - 3939483201 (rif. 1205 PR SX)
info@crimmobili.it - www.crimmobili.it
Caratteristiche principali
Codice
1205 PR SX
Città
Bollate (Cassina Nuova)
Categoria
3 locali
Prezzo
138.000 €
Locali
3
Camere
2
Bagni
1
Mq
94
Piano
Rialzato
Classe energetica
G
348,13 kWh/m²a
Stato Immobile
Come da Origini
Grado
Medio
Posizione
Centro
Panorama
Vista Aperta
Orientamento
Nord Est Sud
Lati Liberi
3
Giardino
No
Arredi
Non Arredato
Tipo Soggiorno
Soggiorno
Tipo Cucina
Abitabile
Riscaldamento
Autonomo
Tipo Riscaldam.
Caldaia
Tipo Impianto
Radiatori
Fonte Energetica
Metano
Acqua Calda
Autonoma
Raffrescamento
No
Infissi
Alluminio Doppio Vetro
Serramenti
Buono
Persiana
Tapparella PVC
Pavim. Giorno
Marmette
Pavim. Notte
Marmette
Pavim. Cucina
Marmette
Pavim. Bagno
Ceramica
Accesso Disabili
No
Accesso interno disabili
Non accessibile
Isolamento
Non presente
Isolamento termico
Nessuno
Isolamento acustico
Nessuno
Destinato a residenti
Si

Accessori: Doppi Vetri

Mappa
Via Praga 85, Bollate (MI)
Richiedi informazioni
Invia
Condividi su
Cookie preference