Italiano
125.000 €

BILOCALE RISTRUTTURATO ULTIMO PIANO CON BALCONE

2 locali in vendita • Baranzate - Via Primo Maggio, 23
- IMMOBILE IN TRATTATIVA -

Baranzate (MI) – Zona Centro.

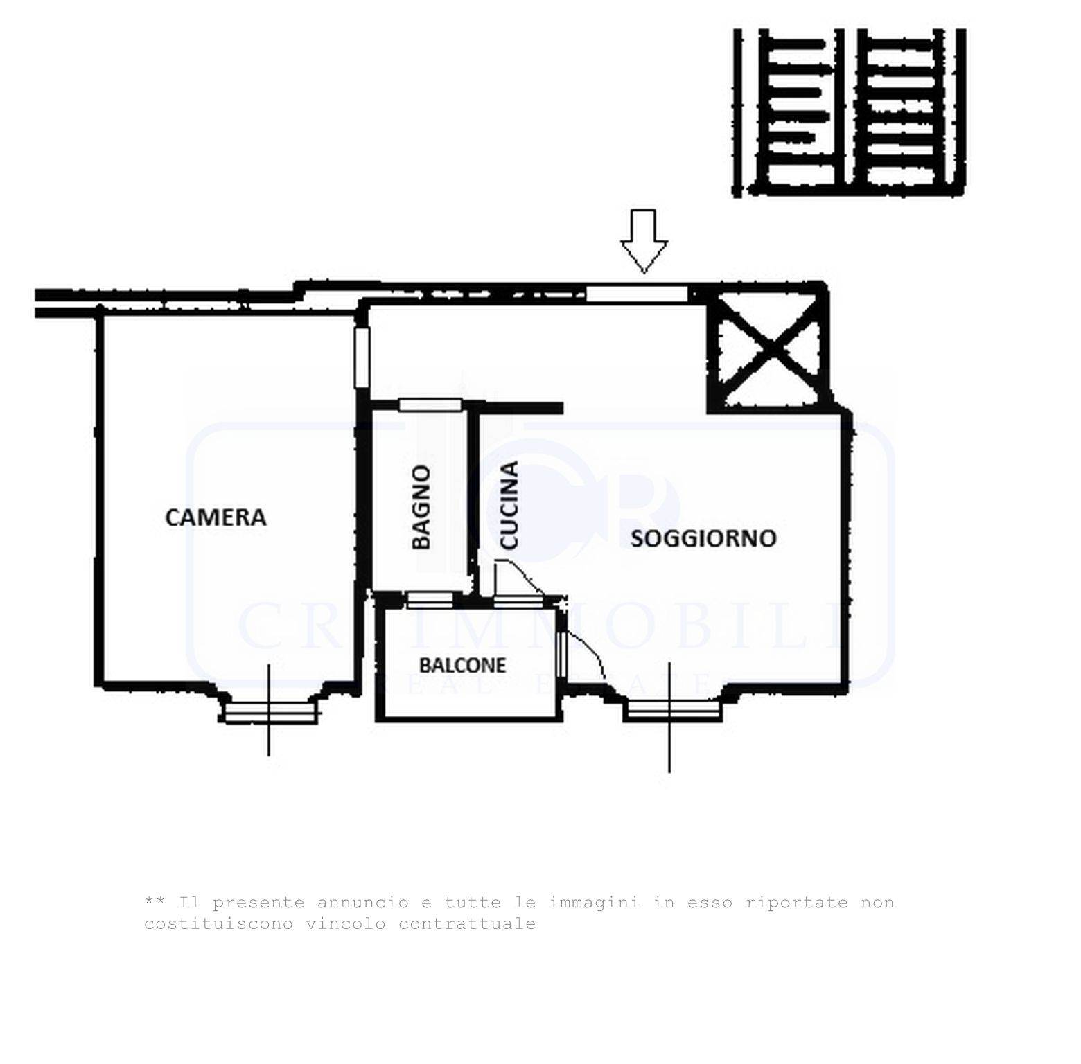
In condominio situato in posizione centrale, a pochi passi dalla piazza del mercato, proponiamo in vendita luminoso bilocale di 45mq posto all’ultimo piano.

L’appartamento è composto da: ingresso, soggiorno con cucina a vista e accesso al balcone, disimpegno, camera matrimoniale e bagno.

Completa la proprietà un solaio di pertinenza.

L’immobile è stato completamente ristrutturato a fine 2023 e presenta finiture moderne:
- Infissi in PVC con doppi vetri
- Tapparelle in alluminio coibentato con cassoni nuovi
- Pavimentazione in laminato nella zona giorno e notte e in gres/ceramica nel bagno
- Bagno rifatto completamente con box doccia
- Impianto elettrico nuovo
- Boiler/caldaia elettrica per acqua calda
- Piano cottura a induzione
- Aria condizionata in tutti i locali

Riscaldamento centralizzato con spese condominiali di circa Euro 1.500 annui, comprensive di riscaldamento e acqua potabile.

Libero al rogito.

Richiesta Euro 125.000.

Classe energetica: in fase di preparazione

Per informazioni e appuntamenti:
CR IMMOBILI RE Srl
Tel. 0238306701 - 3939483201 (Rif. 1204)
info@crimmobili.it - www.crimmobili.it
Caratteristiche principali
Codice
1204
Città
Baranzate
Categoria
2 locali
Prezzo
125.000 €
Spese condominiali
1.500 € / anno
Locali
2
Camere
1
Bagni
1
Mq
45
Balconi
1
Mq Balcone
3
Piano
5
Classe energetica
E
175 kWh/m²a
Stato Immobile
Ristrutturato
Grado
Medio
Posizione
Centro
Panorama
Vista Aperta
Orientamento
Ovest
Lati Liberi
1
Giardino
No
Arredi
Possibilità
Tipo Soggiorno
Soggiorno
Tipo Cucina
A Vista
Riscaldamento
Centralizzato
Tipo Riscaldam.
Caldaia
Tipo Impianto
Radiatori
Fonte Energetica
Metano
Acqua Calda
Autonoma
Raffrescamento
Split
Infissi
PVC Doppio Vetro
Serramenti
Nuovo
Persiana
Tapparella Metallo
Pavim. Giorno
Laminato
Pavim. Notte
Laminato
Pavim. Cucina
Laminato
Pavim. Bagno
Gres Porcellanato
Accesso Disabili
No
Accesso interno disabili
Pieno accesso
Isolamento
Non presente
Isolamento termico
Nessuno
Isolamento acustico
Nessuno
Destinato a residenti
Si

Accessori: Aria Condizionata, Ascensore, Doppi Vetri, Porta Blindata, Rete Dati

Mappa
Via Primo Maggio 23, Baranzate (MI)
Video
Richiedi informazioni
Invia
Condividi su
Cookie preference