Italiano
255.000 €

UFFICIO DI 73MQ CONVERTIBILE IN RESIDENZIALE

3 locali in vendita • Milano (Barona/ Giambellino/ Lorenteggio) - Via Dei Benedettini, 6
Milano via Dei Benedettini 6.

In stabile signorile anni '70, ubicato in una zona tranquilla, riservata e servita, vendesi immobile di 73 mq, attualmente accatastato ad uso ufficio (A/10), con possibilità di cambio d'uso in abitazione (A/3).

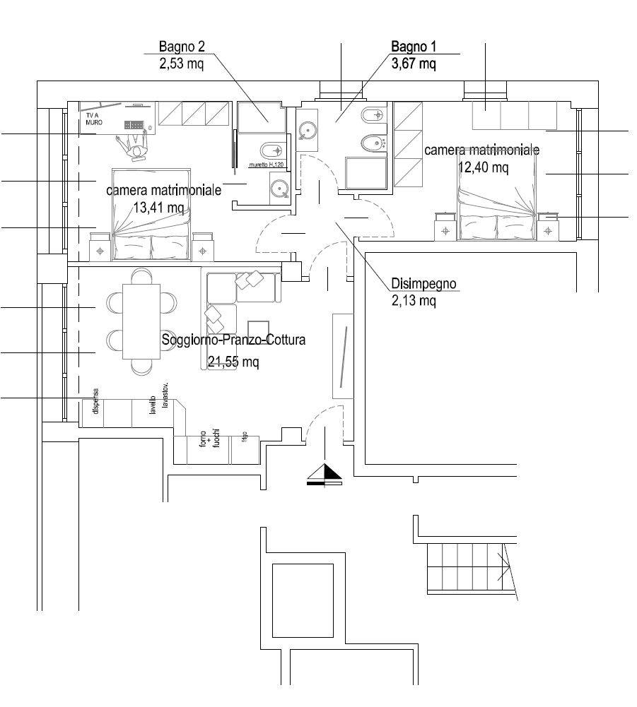
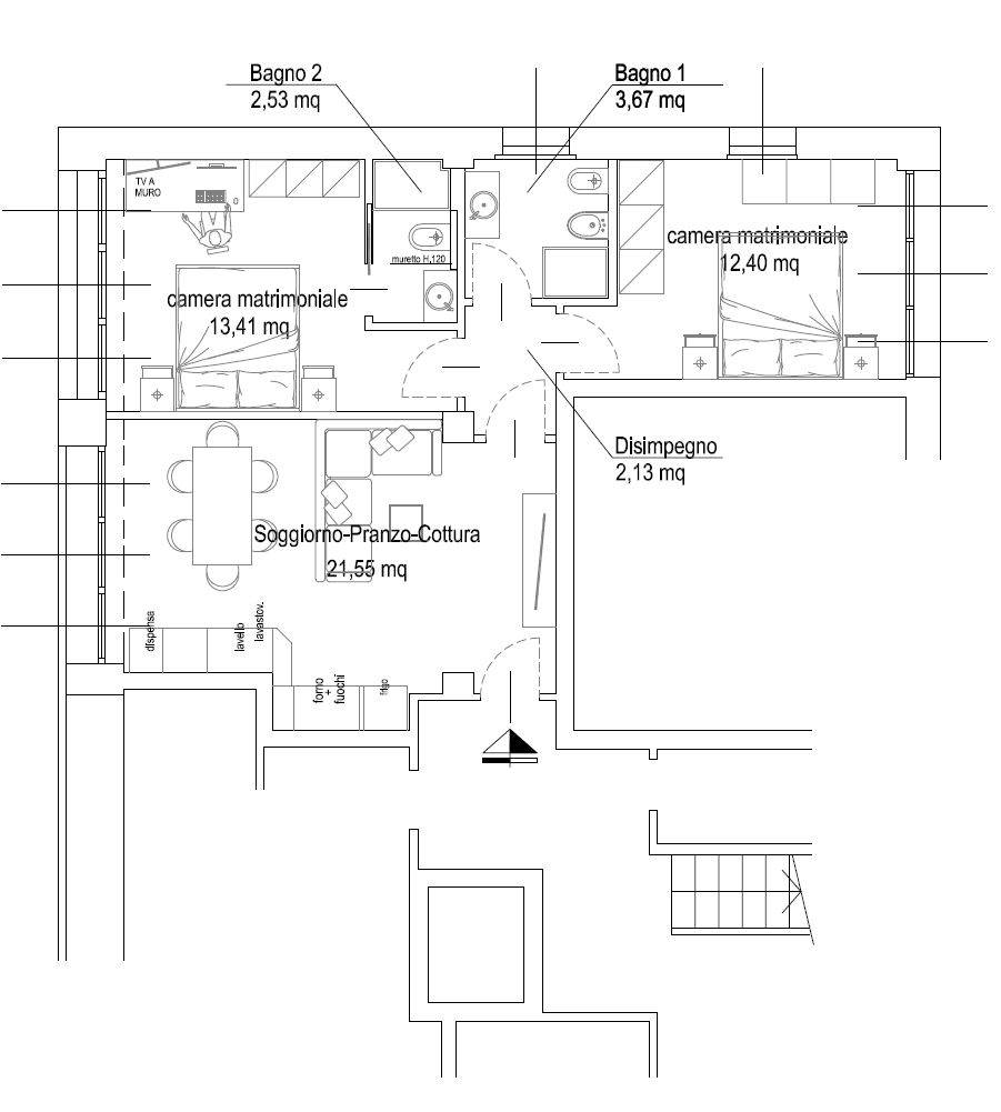
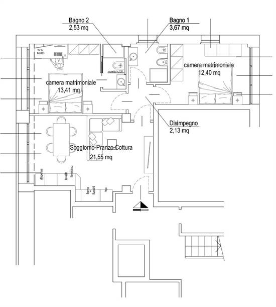
La soluzione si presenta in buonissime condizioni, con pavimentazione in parquet, infissi con doppi vetri e apertura motorizzata, porta blindata e aria condizionata. Grazie alla metratura e alla disposizione interna, l’immobile risulta versatile e facilmente adattabile in residenziale con possibilità di ricavare un comodo, moderno ed ampio appartamento di due locali (la prima foto è un render esemplificativo) oppure un trilocale con doppi servizi (come da planimetria di progetto).

La possibilità di cambio di destinazione d’uso in abitazione rende questo immobile una soluzione ideale sia come investimento che come prima casa.

L’unità è inserita in uno stabile medio-signorile dei primi anni ’70, in ottime condizioni, molto curato e dotato di servizio di portineria mezza giornata. Contesto tranquillo e residenziale, ben servito e a pochi passi dalle fermate dalla metropolitana M1 (linea rossa - Primaticcio/Bande Nere) e M4 (linea blu - Gelsomini/Frattini).

Caratteristiche principali:
- 73 mq
- Attuale destinazione: ufficio
- Piano seminterrato con ottima luminosità naturale
- Possibilità di cambio d'uso in residenziale
- Tripla esposizione
- Riscaldamento centralizzato con termovalvole
- Spese condominiali: circa Euro 1.000/anno più consumo riscaldamento contabilizzato

L’immobile è libero subito e viene venduto nello stato di fatto in cui si trova, attualmente censito in categoria catastale A/10 (ufficio). Eventuali pratiche edilizie, modifiche e opere interne necessarie per il cambio di destinazione d’uso saranno a carico della parte acquirente. Il cambio di destinazione d’uso risulta senza oneri, salvo ulteriore verifica da effettuarsi con il proprio tecnico di fiducia.

Richiesta Euro 255.000.

Classe Energetica: D – IPE: 354,97 kWh/mq

Per info ed appuntamenti:
CR IMMOBILI RE Srl
Tel. 0238306701 - 3939483201 (rif. 1200_RES)
info@crimmobili.it - www.crimmobili.it
Caratteristiche principali
Codice
1200_RES
Città
Milano (Barona/ Giambellino/ Lorenteggio)
Categoria
3 locali
Prezzo
255.000 €
Spese condominiali
1.000 € / anno
Locali
3
Camere
2
Bagni
1
Mq
73
Piano
Seminterrato
Classe energetica
D
354,97 kWh/m²a
Stato Immobile
Buono
Grado
Signorile
Posizione
Centro
Panorama
Vista Giardino
Orientamento
Est Sud Ovest
Lati Liberi
3
Giardino
No
Arredi
Non Arredato
Tipo Soggiorno
Soggiorno
Tipo Cucina
A Vista
Riscaldamento
Centralizzato
Tipo Riscaldam.
Caldaia
Tipo Impianto
Radiatori
Fonte Energetica
Metano
Acqua Calda
Autonoma
Raffrescamento
Split
Infissi
Alluminio Doppio Vetro
Serramenti
Buono
Persiana
Personalizzato
Pavim. Giorno
Parquet
Pavim. Notte
Parquet
Pavim. Cucina
Parquet
Pavim. Bagno
Ceramica
Accesso Disabili
No
Accesso interno disabili
Pieno accesso
Isolamento
Non presente
Isolamento termico
Nessuno
Isolamento acustico
Nessuno

Accessori: Aria Condizionata, Ascensore, Cancello Elettrico, Doppi Vetri, Porta Blindata, Portineria/Custode, Rete Dati

Mappa
Via Dei Benedettini 6, Milano (MI)
Richiedi informazioni
Invia
Condividi su
Cookie preference